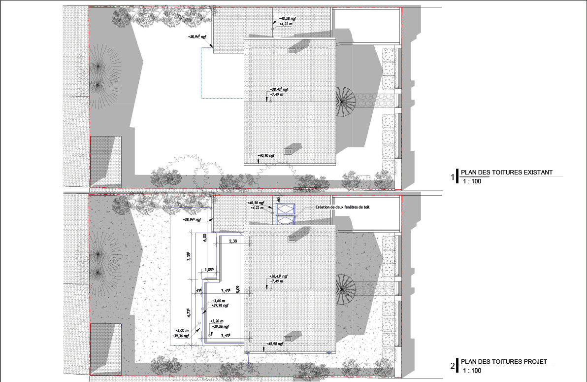
Conception de projet et production du dossier administratif (déclaration préalable) pour une extension en bois d’un pavillon dans Val-de-Marne. Surface de l’extension est de 20m².




Conception de projet et production du dossier administratif (déclaration préalable) pour une extension en bois d’un pavillon dans Val-de-Marne. Surface de l’extension est de 20m².



