OKKO HOTEL à Cannes
- INFORMATIONS
- Maitre d’ouvrage : VINCI Immobilier
- Architecte MOE: DGLa Architecture
- Chef de projet: Marta Godziemba
- BET: Khephren, Barbanel
- Architecte d’Intérieur: Patrick Norguet
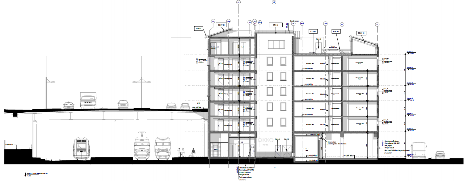
Le corps du bâtiment s’adosse à la gare SNCF de Cannes et se compose d’un volume émergent en forme de «L» avec un patio à l’angle intérieur. On distingue deux volumes dû à la faille produite par la présence de ce patio, espace de transition privé avant l’entrée dans le bâtiment. Une passerelle relie les deux volumes en partie haute pour que le «Club» jouisse d’une terrasse à l’air libre.
La façade sur l’escalier monumental de la gare est sobre, une partie est traitée d’éléments horizontaux et de baies sur les couloirs, au dernier niveau une grande baie tout hauteur marque l’espace de détente. Les chambres de l’ hôtel s’orientent essentiellement sur des vues Sud et Ouest.
Le corps du bâtiment est animé par les jeux de percements des fenêtres et les persiennes.
Le couronnement est composé d’un traitement en baies dans l’espace «Club» avec une composition de jeux de toitures plates et à deux versants en tuile canal pour une meilleure intégration urbaine.
Le projet est réalisé.





