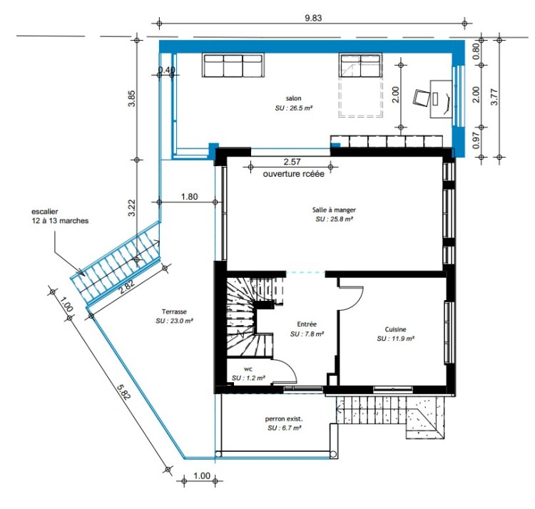
Nous voyons les choses en GRAND ! Ce projet d’extension d’un pavillon des années 1960 sera agrandi et connecté à son jardin. Le projet est en cours de conception pour la partie technique, les grandes lignes sont tracées et le dossier de permis de construire est prêt.
C’est un bel défit de partir d’un existant et de l’adapter aux besoins de la famille.




